PSC Viadotto Marano I

Piano di Sicurezza e Coordinamento relativo agli interventi di ripristino del Viadotto Marano I


Documenti redatti:

  • Piano di Sicurezza e Coordinamento
  • Fascicolo della Sicurezza
  • Tavola di cantierizzazione

 

Per conto di: Studio Tecnico Del Soldato 

Luogo: Frosinone - Ceprano

Anno: Ottobre 2011

 

Descrizione

Redazione del Piano di Sicurezza e di Coordinamento comprensivo degli allegati secondo il Decreto Legislativo 9 aprile 2008 n.81 “Attuazione dell’ articolo 1 della legge 3 agosto 2007 n. 123, in materia di tutela della salute e della sicurezza nei luoghi di lavoro”.

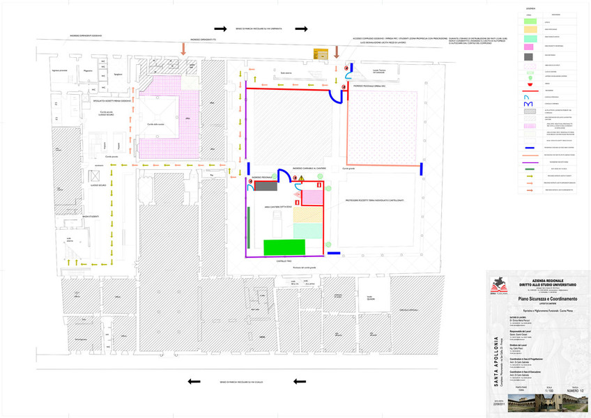
PSC Complesso Monumentale di Sant'Apollonia

Piano di Sicurezza e Coordinamento relativo agli interventi di ripristino della cucina della mensa universitaria all’interno del complesso di Sant’Apollonia.

 

Documenti redatti:

  • Piano di Sicurezza e Coordinamento
  • Fascicolo della Sicurezza
  • Tavole di cantierizzazione

 

Per conto di: DSU Toscana 

Luogo: Firenze

Anno: Settembre 2011

 

Descrizione

Redazione del Piano di Sicurezza e di Coordinamento comprensivo degli allegati secondo il Decreto Legislativo 9 aprile 2008 n.81 “Attuazione dell’ articolo 1 della legge 3 agosto 2007 n. 123, in materia di tutela della salute e della sicurezza nei luoghi di lavoro”.

P.E.E. Salvemini

Redazione del Piano di Emergenza e di Evacuazione relativo al CPI della residenza universitaria Gaetano Salvemini

 

Documenti redatti:

  • Piano di Emergenza e di Evacuazione
  • Cartografia relativa agli approntamenti di sicurezza
  • Tavole dei percorsi delle vie di esodo

 

Per conto di: DSU Toscana 

Luogo: Firenze

Anno: Maggio 2011

 

Descrizione

Redazione del Piano di Emergenza e di Evacuazione comprensivo degli allegati secondo il Decreto Legislativo 9 aprile 2008 n.81 (D.M. 10.3.1998 – D.Lgs. n. 81/2008). 

 



PSC Cantieri stradali

Piani di Sicurezza e Coordinamento relativo ai cantieri stradali

 

Documenti redatti:

  • Schede grafiche per la cantierizzazione
  • Schemi segnaletici per cantieri temporanei e mobili

 

Per conto di: Studio Tecnico Del Soldato 

Luogo: Prato

Anno: Febbraio 2011

 

Descrizione

Redazione delle schede grafiche e degli schemi segnaletici relativi ai cantieri stradali temporanei e mobili in materia di igiene, salute e sicurezza sul lavoro secondo il Decreto Legislativo 9 aprile 2008 n.81 ed il regolamento di attuazione del Nuovo Codice della Strada (D.P.R. 495/92 e sue successive modifiche).

PSC Galleria Pontebba

Piano di Sicurezza e Coordinamento relativo agli interventi di ripristino della Galleria autostradale Pontebba nel tratto Udine - Tarvisio

 

Documenti redatti:

  • Piano di Sicurezza e Coordinamento
  • Fascicolo Tecnico
  • Tavola di cantierizzazione

 

Per conto di: Studio Tecnico Del Soldato 

Luogo: Udine - Tarvisio

Anno: Febbraio 2011

 

Descrizione

Redazione del Piano di Sicurezza e di Coordinamento comprensivo degli allegati secondo il Decreto Legislativo 9 aprile 2008 n.81 “Attuazione dell’ articolo 1 della legge 3 agosto 2007 n. 123, in materia di tutela della salute e della sicurezza nei luoghi di lavoro”.

PSC Galleria Zannier

Piano di Sicurezza e Coordinamento relativo agli interventi di ripristino della Galleria autostradale Zannier nel tratto Udine - Tarvisio

 

Documenti redatti:

  • Piano di Sicurezza e Coordinamento
  • Fascicolo Tecnico
  • Tavola di cantierizzazione

 

Per conto di: Studio Tecnico Del Soldato 

Luogo: Udine - Tarvisio

Anno: Gennaio 2011

 

Descrizione

Redazione del Piano di Sicurezza e di Coordinamento comprensivo degli allegati secondo il Decreto Legislativo 9 aprile 2008 n.81 “Attuazione dell’ articolo 1 della legge 3 agosto 2007 n. 123, in materia di tutela della salute e della sicurezza nei luoghi di lavoro”.

PSC Casa via delle Ruote

Piano di Sicurezza e Coordinamento relativo agli interventi di rifacimento di porzione di facciata  condominiale su corte interna, e manutenzione ordinaria a piccola  porzione di copertura sempre su corte interna.

 

Documenti redatti:

  • Piano di Sicurezza e Coordinamento
  • Fascicolo Tecnico 

Per conto di: Arch. Piero Dei

Luogo: Firenze

Anno: Gennaio 2011

 

Descrizione

Redazione del Piano di Sicurezza e di Coordinamento comprensivo degli allegati secondo il Decreto Legislativo 9 aprile 2008 n.81 “Attuazione dell’ articolo 1 della legge 3 agosto 2007 n. 123, in materia di tutela della salute e della sicurezza nei luoghi di lavoro”.

PSC Galleria Gabbia

Piano di Sicurezza e Coordinamento relativo agli interventi di ripristino della Galleria autostradale Gabbia nel tratto Genova - Serravalle

 

Documenti redatti:

  • Piano di Sicurezza e Coordinamento
  • Fascicolo Tecnico
  • Tavola di cantierizzazione

 

Per conto di: Studio Tecnico Del Soldato 

Luogo: Genova - Serravalle

Anno: Dicembre 2010

 

Descrizione

Redazione del Piano di Sicurezza e di Coordinamento comprensivo degli allegati secondo il Decreto Legislativo 9 aprile 2008 n.81 “Attuazione dell’ articolo 1 della legge 3 agosto 2007 n. 123, in materia di tutela della salute e della sicurezza nei luoghi di lavoro”.

PSC Svincolo Maddaloni

Piano di Sicurezza e Coordinamento relativo agli interventi di realizzazione dello svincolo Maddaloni

 

Documenti redatti:

  • Piano di Sicurezza e Coordinamento
  • Fascicolo della Sicurezza
  • Tavola di cantierizzazione

 

Per conto di: Studio Tecnico Del Soldato 

Luogo: Maddaloni (CE) A-30

Anno: Novembre 2010

 

Descrizione

Redazione del Piano di Sicurezza e di Coordinamento comprensivo degli allegati secondo il Decreto Legislativo 9 aprile 2008 n.81 “Attuazione dell’ articolo 1 della legge 3 agosto 2007 n. 123, in materia di tutela della salute e della sicurezza nei luoghi di lavoro”.

Arch. Gabriele Di Carlo

Via Maestro Isacco, n° 1

50127 Firenze ITALIA

Ufficio:

055.4471010

Mobile:

320.0649462

E-mail:

info@gabrieledicarlo.com

PEC:

gabriele.dicarlo@pec.architettifirenze.it

Skipe:

gabriele_di_carlo

 

CONTATTATECI PER UN PREVENTIVO