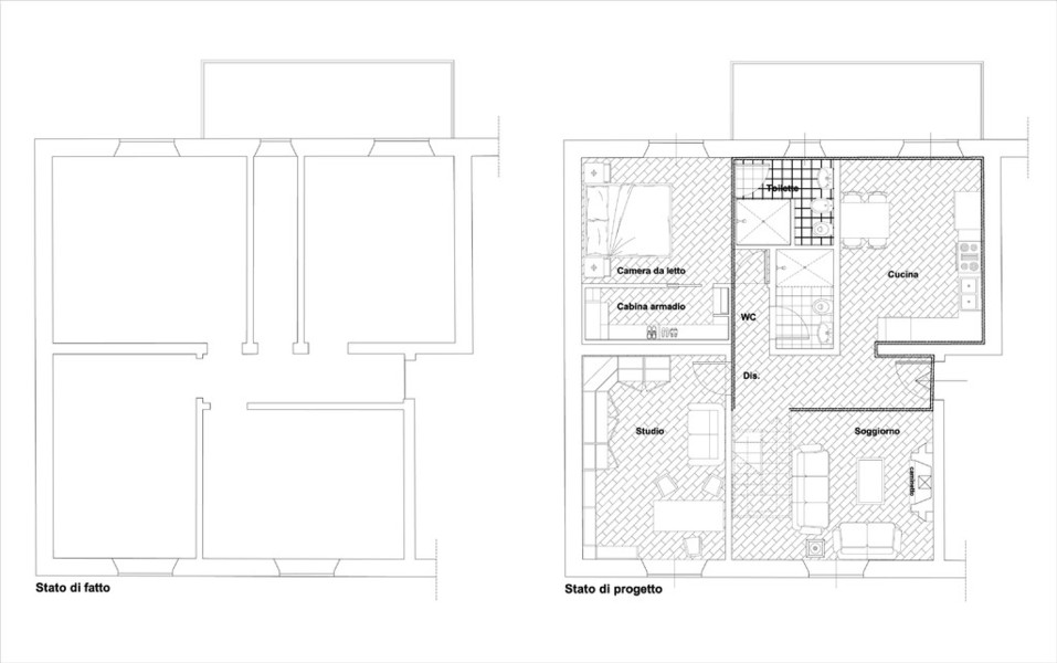
Ristrutturazione edilizia "Casa Via Maestro Isacco"

Progettazione ed intervento edilizio relativo ad una ristrutturazione di civile abitazione

 

Documenti redatti:

  • Progetto Preliminare
  • Progetto Definitivo
  • Progetto Esecutivo
  • SCIA
  • Direzione Lavori
  • Coordinamento Sicurezza
  • DOCFA
  • Certificazione Energetica

Committente: Privato 

Luogo: Firenze

Anno: Marzo 2012

 

Descrizione

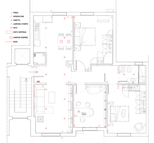
Il progetto di ristrutturazione consiste nel creare un ambiente unico accessibile dalla porta d'ingresso attraverso la demolizione dei tramezzi della sala pranzo e del soggiorno. L'intervento consente una migliore fruibilità degli spazi e dell'illuminazione, grazie alle due terrazze esposte ad Est e ad Ovest. Il tramezzo divisorio fra la zona notte e la zona giorno è demolito in modo da garantire una maggiore profondità spaziale. Il percorso che attraversa la casa è illuminato da faretti a terra, led a nastro luminosi, e faretti incassati nel controsoffitto, che realizzato su due quote diverse, crea un gioco di luci e e sovrapposizioni di volumi. Una quinta in cartongesso consente il passaggio dalla zona giorno alla zona notte. La composizione spaziale ha consentito l'eliminazione di tre porte interne, con la creazione di un' ambiente unico diviso dagli spazi più intimi da un piccolo disimpegno. Il parquet in rovere sbiancato, il gres bronzato ed antracite, la decorazione a mosaico bianco e grigio, il wengè, creano un ambiente minimal molto elegante, accogliente e funzionale.

Progetto di Ristrutturazione Edilizia "Casa Via del Sarto"

Redazione del Progetto Preliminare relativo ad una ristrutturazione edilizia di una residenza privata

 

Documenti redatti:

  • Progetto Preliminare
  • Stima sommaria dell'intervento
  • Verifica normativa sui parcheggi pertineziali per concessione condono

Committente: Privato 

Luogo: Firenze

Anno: Aprile 2011

 

Descrizione

Il progetto di ristrutturazione consiste nel creare un ambiente unico accessibile dalla porta d'ingresso attraverso la demolizione della parete portante con conseguente cerchiatura dell'apertura, e di una zona notte accessibile attraverso un piccolo disimpegno. Inoltre è previsto lo sfruttamento della zona del sottotetto con la realizzazione di un soppalco abitabile.

 

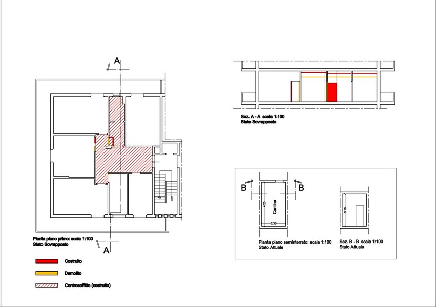
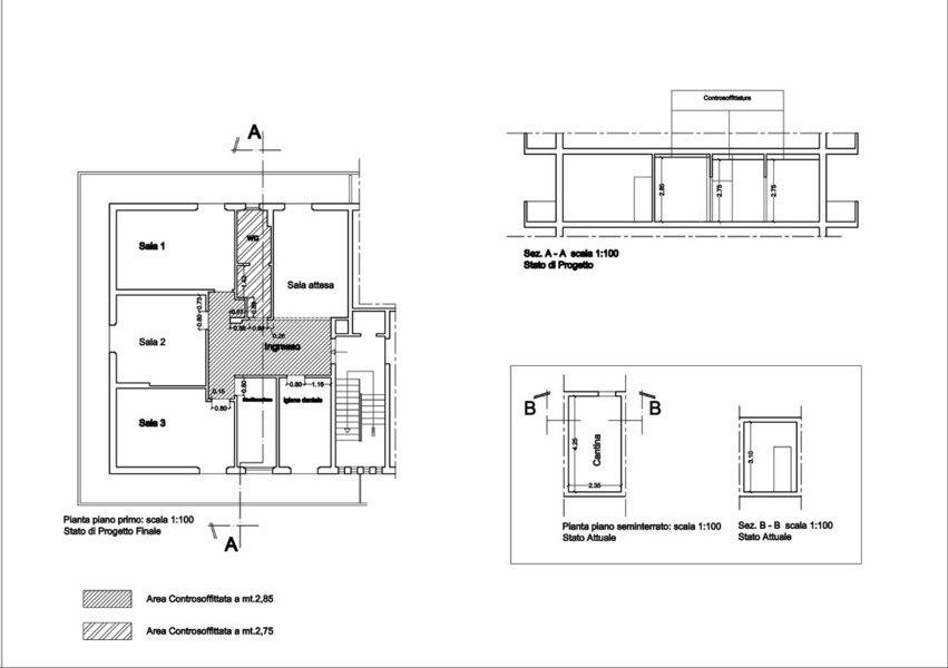
DIA Studio Dentistico

Redazione della DIA per ristruttuturazione studio dentistico

 

Documenti redatti:

  • Variante finale in riferimento alla DIA
  • PSC

Per conto di: Arch. Piero Dei 

Luogo: Scandicci (FI)

Anno: Febbraio 2011

 

Descrizione

Variante finale ai sensi dell'Art. 149, della L.R. 1/2005 in riferimento alla DIA ai sensi dell' Art. 79, L.R. 1/2005 per intervento di ristrutturazione edilizia consistente in opere interne con cambio di destinazione d'uso.

Progetto di Ristrutturazione Edilizia "Lungo l'Affrico"

Redazione del Progetto Preliminare relativo ad una ristrutturazione edilizia di una residenza privata

 

Documenti redatti:

  • Progetto Preliminare
  • Stima sommaria dell'intervento
  • Verifica normativa sui soppalchi nei sottotetti abitabili

Committente: Privato 

Luogo: Firenze

Anno: Febbraio 2011

 

Descrizione

Il progetto di ristrutturazione consiste nel creare un ambiente unico al piano di ingresso dove alloggia il soggiorno e la cucina abitabile. La zona notte è ricavata grazie allo sfruttamento della zona del sottotetto con la realizzazione di un soppalco abitabile.

Progetto Ampliamento Scuola Materna

Redazione del Progetto Preliminare relativo ad un ampliamento della scuola materna delle suore di San Giuseppe.

 

Documenti redatti:

  • Progetto Preliminare
  • Stima sommaria dell'intervento
  • Verifica normativa per l'installazione gazebo in legno
  • Verifica normativa antincendio

Committente: Privato

Luogo: Marina di Pietrasanta

Anno: Dicembre 2010

 

Descrizione

Il progetto di ampliamento consiste nel creare un ambiente accessorio al piano terra della superficie di circa 50 mq realizzato da un gazebo in legno e vetro. I pannelli della struttura sono frontalmente rimovibili in modo da poter creare, nei periodi estivi, una quinta scenica in occasione delle recite e delle manifestazioni organizzate dalla scuola.

Progetto di Ristrutturazione Edilizia "Casa Rovai"

Redazione del Progetto Preliminare relativo ad una ristrutturazione edilizia di una residenza privata

 

Documenti redatti:

  • Progetto Preliminare
  • Stima sommaria dell'intervento

Per conto di: Arch. Piero Dei

Luogo: Scandicci (FI)

Anno: Ottobre 201o

 

Descrizione

Il progetto di ristrutturazione consiste nel creare un ambiente giorno in comunicazione con la resede esterna. Le due camere da letto sono ricavate grazie all'ausilio di pareti di cartongesso con elementi di chiusura scorrevoli. I materiali scelti garantiscono luminosità agli spazi in modo da garantire un ambiente confortevole ed accogliente.

Progettazione Impianto Pannelli Fotovoltaici

Redazione del Progetto Preliminare relativo all'installazione di un impianto di pannelli fotovoltaici.

 

Documenti redatti:

  • Progetto Preliminare

Per conto di: P.E.R. 

Luogo: San Severo (FG)

Anno: Settembre 2010

 

Descrizione

Il progetto consiste nella realizzazione di un impianto di produzione di energia elettrica da fonte solare (0,891 MW)


Progettazione d'Interni Edificio Residenziale

Progettazione Interni di un Edificio a Torre per civili abitazioni.

 

Documenti redatti:

  • Progetto d'Interni
  • Light Design

Per conto di: Studio Archea

Luogo: Jesolo (VE)

Anno: Maggio 2010

 

Descrizione

Il progetto consiste nella realizzazione di interni per un edificio a torre nella città di Jesolo. Nel progetto si predilige utilizzare ambienti aperti che consentono la vista e la continuità con gli spazi ed il panorama esterno. I materiali usati, parquet in rovere sbiancato e rifiniture bianche, consentono di garantire una grande luminosità ai locali. Un pannello scorrevole in acciaio corten consente la divisione fra la zona notte e la notte giorno, mentre sulle verande, altri pannelli movibili, in policarbonato colorato, possono filtrare e schermare la luce solare secondo le esigenze. Il controsoffitto in cartongesso, staccato dalle pareti e sospeso, garantisce una suggestiva illuminazione perimetrale a parete grazie all'utilizzo di led a nastro montati all'interno della stesso telaio.

Progettazione Masterplan Sanya

Progettazione di un masterplan nella località cinese di Sanya

 

Documenti redatti:

  • Progetto d'Interni
  • Progetto d'Esterni

Per conto di: Studio Archea

Luogo: Sanya Hainan (CINA)

Anno: Aprile 2010

 

Descrizione

Il progetto consiste nella realizzazione di un masterplan su un'area di circa 400000 mq. nella località cinese di Sanya. L'intervento prevede la realizzazione di edifici pubblici e privati, alberghi, resort, ville, parchi e parcheggi.

Design Project Samsung' Fireplace

Design e Progetto di un camino trasportabile 

 

Documenti redatti:

  • Design Project

Per conto di: Studio Archea

Luogo: Firenze

Anno: Febbraio 2010

 

Descrizione

Il progetto consiste nella realizzazione di un camino trasportabile in materiale ceramico Samsung con bruciatore in acciaio a gas. 

Progettazione Interni Cantina Antinori

Progettazione degli spazi interni della cantina Antinori di Firenze

 

Documenti redatti:

  • Progettazione d'Interni

Per conto di: Studio Archea

Luogo: Bargino, San Casciano Val di Pesa, Firenze, Italia

Anno: Febbraio 2010

 

Descrizione

La progettazione degli spazi interni relativi al primo livello dell'edificio prevede la realizzazione di una grande hall. Gli uffici sono ricavati grazie all'utilizzo di quinte di vetro. All'interno dell'edificio filtra la luce solare dal tetto attraverso aperture circolari. Si crea un rapporto di continuità fra il contesto paesaggistico ed il costruito. Grazie a grandi vetrate è possibile godere dell'effetto scenico del luogo. I materiali usati per le rifiniture ed i rivestimenti sono l'acciaio corten, mentre listelli in rovere sono posati a correre sia sul pavimento che sulle pareti interne.

Progetto Villa Helchem

Progettazione di una villa a ponte 

 

Documenti redatti:

  • Progetto d'Interni
  • Progetto d'Esterni

Per conto di: Studio Archea

Luogo: Helchem (Canada)

Anno: Gennaio 2010

 

Descrizione

Il progetto consiste nella realizzazione di una villa a ponte su un'isola canadese nella località di Helchem. La struttura è realizzata con un telaio di acciaio corten con i pilastri interni a vista. Pannelli di legno grezzo sono utilizzati per i pavimenti e per gli elementi scorrevoli delle chiusure esterne. Al piano superiore è prevista la zona notte, nel mezzanino trova spazio un confortevole soggiorno con due grandi camini in corten, mentre nella parte inferiore è realizzata una SPA con piscina, gimnasium, sauna, idro e zone relax.

Progettazione KTM Tower

Progettazione degli alloggi interni di un edificio a torre a Dubai

 

Documenti redatti:

  • Progetto d'Interni

Per conto di: Studio Archea

Luogo: Dubai (Emirati Arabi)

Anno: Gennaio 2010

 

Descrizione

Studio e progettazione d'interni in un edificio a torre nella città di Dubai negli Emirati Arabi.


Progettazione "The World Island"

Progettazione di un complesso di ville a Dubai 

 

Documenti redatti:

  • Progettazione d'Interni
  • Progettazione d'Esterni

Per conto di: Studio Archea

Luogo: Dubai (Emirati Arabi)

Anno: Novembre 2009

 

Descrizione

Studio e progettazione di complesso di ville in "The World". Questo è un arcipelago artificiale situato a 4 km dalla costa di Dubai, composto da 300 isole, disposte in modo tale, che viste dall'alto, formino l'intero planisfero terrestre.

Progetto Loft

Progettazione di un Loft ricavato all'interno di un sottotetto di una civile abitazione.

 

Documenti redatti:

  • Progetto Esecutico
  • DIA
  • Direzione Lavori - Accatastamento

Committente: Privato

Luogo: Foggia

Anno: Ottobre 2009

 

Descrizione

Il progetto consiste nella realizzazione di un loft abitabile all'interno di un sottotetto di una civile abitazione. L'ambiente è diviso in due ampi spazi grazie alla creazione di una parete attrezzata realizzata e progettata su misura che funziona come divisorio, guardaroba e mobile soggiorno. Nella zona giorno si ricava il salotto e la cucina, sfruttando nel miglior modo possibile la distribuzione degli spazi e delle altezze, ricavando armadi realizzati su misura nella parte più bassa del tetto. La continuità con la terrazza esterna  è garantita grazie a grandi aperture finestrate che favoriscono un'ottima illuminazione naturale dell'ambiente interno. Il gazebo esterno e le rifiniture in legno rendono lo spazio molto caldo e accogliente.

Progetto di Ristrutturazione Civile Abitazione

Redazione del Progetto Preliminare relativo alla ristrutturazione di una civile abitazione

 

Documenti redatti:

  • Progetto Preliminare
  • Stima sommaria dell'intervento

Committente: Privato

Luogo: Foggia

Anno: Luglio 2008

 

Descrizione

Il progetto è finalizzato alla riqualificazione degli spazi interni relativi ad un fabbricato degli anni '40 nel centro storico di Foggia. L'intervento prevede la messa a norma degli impianti ed una riorganizzazione degli ambienti in una zona notte ed una zona giorno. Quest'ultima avrà un cono visivo che consetirà una contuinità spaziale dell'interno con la grande veranda esterna, garantendo una grande luminosità e vivibilità del costruito.

Bozze Varie di Studio

Arch. Gabriele Di Carlo

Via Maestro Isacco, n° 1

50127 Firenze ITALIA

Ufficio:

055.4471010

Mobile:

320.0649462

E-mail:

info@gabrieledicarlo.com

PEC:

gabriele.dicarlo@pec.architettifirenze.it

Skipe:

gabriele_di_carlo

 

CONTATTATECI PER UN PREVENTIVO